| Prijs | € 415.000,- k.k. |
| Type object | Woonhuis, eengezinswoning, hoekwoning |
| Perceeloppervlakte | 392 m² |
| Woonoppervlakte | 149 m² |
| Aanvaarding | In overleg |
| Status | Verkocht onder voorbehoud |
Het betreft een bieden vanaf prijs! Energieneutraal. Landelijk gelegen in de Noord Oost Polder presenteren wij met trots deze ruime hoekwoning op groot perceel met eigen oprit! Veel privacy. Centraal gelegen in de Polder betekent landelijk uitzicht. Maar ook dichtbij het watersportgebied van Friesland. Lemmer is 5 minuten verderop. Voorts goede verbinding naar Emmeloord, de Randstad, Amsterdam en/of Utrecht max 1 uur rijden. Zwolle 30 minuten. Als u kiest voor deze goed onderhouden hoekwoning kiest u voor rust en ruimte terwijl de bedrijvigheid toch dichtbij is. Dit klinkt echt als een droomwoning voor wie op zoek is naar comfort, duurzaamheid én ruimte! De combinatie van een energie neutrale hoekwoning met een strakke, moderne indeling, kantoorruimte op de begane grond en de mogelijkheid om extra ruimte op de zolder te creëren, maakt het een veelzijdige keuze. De rustige en groene omgeving is ideaal voor gezinnen of iedereen die van de natuur houdt. Grote tuin met overkapping en berging. Veel privacy! Deze woning heeft werkelijk alles wat u nodig heeft, een lichte, tuingerichte woonkamer waar u heerlijk kunt ontspannen, een gezellige half open keuken voorzien van alle relevante apparatuur, voor gezellige kookavonden, een complete badkamer en maar liefst 3 ruime slaapkamers. En als kers op de taart een royale, zonnige achtertuin waar u de hele dag van de zon kunt genieten!
Bij binnenkomst word u verwelkomd in een ruime entree met nette hal, waar u directe toegang heeft tot de meterkast en een modern afgewerkt toilet. Vanuit deze hal betreed u de royale, tuingerichte woonkamer. Deze woonkamer baadt in het licht dankzij de grote raampartijen en biedt een heerlijk uitzicht op de prachtige achtertuin. Ruim bemeten kantoor en aansluitend een was/droogopstelling in de bijkeuken. De begane grond is praktisch en modern ingericht. De open keuken met alle benodigde apparatuur, inductie kookplaat, stoomoven, quooker bieden echt alles voor een comfortabel kookproces. Het composiet aanrechtblad geeft de keuken niet alleen een luxe uitstraling, maar is ook nog eens praktisch in onderhoud. Met een perceel van maar liefst 20 meter diep (inclusief de berging), is dit de perfecte plek om te ontspannen, te tuinieren of gezellig met vrienden te barbecueën. De tuin is verzorgd aangelegd, een fijne mix van groen en onderhoudsvriendelijke ruimte. Achterin de tuin vind je een praktische houten berging, ideaal voor fietsen en tuinspullen en een overkapping om gezellig te loungen.
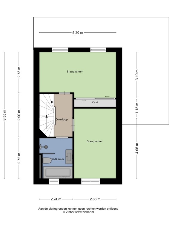
Via de vaste trap bereikt u de bovenverdieping met twee ruim bemeten slaapkamers welke genoeg ruimte biedt voor een gezin, een thuiskantoor of een hobbyruimte. Het is altijd fijn om een badkamer te hebben die van alle gemakken is voorzien, zoals vloerverwarming, een regendouche, ligbad en een wastafelmeubel. Het hangende toilet draagt bovendien bij aan de strakke uitstraling van de ruimte.
De zolder lijkt echt een veelzijdige ruimte! De vaste trap maakt het makkelijk om de ruimte te bereiken, en met de en opstelling van de warmtepomp + warmwaterboiler is het al goed ingedeeld voor praktische toepassingen. Ook de verdeler van de zonnepanelen is daar handig geplaatst, waardoor je niet alleen de energie-efficiëntie kunt monitoren, maar het ook een mooie plek is voor de technische installaties. Met de ruime zolder kun je allerlei kanten op. Het kan makkelijk omgetoverd worden tot extra slaapkamers, een kantoor, of een hobbyruimte, afhankelijk van uw behoeften. De mogelijkheden zijn er!
Grote tuin zowel voor- als achterzijde. Vrij uitzicht, schone lucht. Tal van mogelijkheden. Welke hobby u ook heeft, hier heeft u ruimte. In de tuin grote vrijstaande houten berging met overkapping.
Bijzonderheden: - 15 zonnepanelen 2022 - inductie kookplaat, quooker – 3 slaapkamers en kantoorruimte (BG) - eigen oprit voor 2 auto's - energieneutraal - woning met mogelijkheden - diepe achtertuin - warmtepomp - nabij openbaar vervoer en uitvalswegen - vloerverwarming op BG en eerste verdieping - keukenopstelling 2022 - extra groepen o.a. voor laadpaal auto - rookmelders 2022 - hogere leenquote op basis van energielabel tot € 30.000,=
| Referentienummer | 00841 |
| Vraagprijs | € 415.000,- k.k. |
| Inrichting | Ja |
| Inrichting | Gestoffeerd |
| Status | Verkocht onder voorbehoud |
| Aanvaarding | In overleg |
| Aangeboden sinds | Vrijdag 21 november 2025 |
| Laatste wijziging | Dinsdag 2 december 2025 |
| Type object | Woonhuis, eengezinswoning, hoekwoning |
| Soort bouw | Bestaande bouw |
| Bouwperiode | 2022 |
| Dakbedekking | Dakpannen |
| Type dak | Zadeldak |
| Isolatievormen | HR-glas Volledig geïsoleerd |
| Perceeloppervlakte | 392 m² |
| Woonoppervlakte | 149 m² |
| Inhoud | 529 m³ |
| Oppervlakte externe bergruimte | 9 m² |
| Oppervlakte gebouwgebonden buitenruimte | 15 m² |
| Aantal bouwlagen | 3 |
| Aantal kamers | 5 (waarvan 4 slaapkamers) |
| Aantal badkamers | 1 (en 1 apart toilet) |
| Ligging | Aan rustige weg Dichtbij openbaar vervoer In bosrijke omgeving In centrum In woonwijk Nabij school Nabij snelweg Platteland |
| Type | Voortuin |
| Oriëntering | Zuiden |
| Heeft een achterom | Ja |
| Staat | Goed onderhouden |
| Tuin 2 - Type | Voortuin |
| Tuin 2 - Oriëntering | Noorden |
| Tuin 2 - Staat | Goed onderhouden |
| Tuin 3 - Type | Achtertuin |
| Tuin 3 - Oriëntering | West |
| Tuin 3 - Staat | Goed onderhouden |
| Energielabel | A+++ |
| Warmtebron | Elektriciteit |
| Eigendom | Eigendom |
| Aantal parkeerplaatsen | 2 |
| Warm water | CV-ketel Elektrische boiler |
| Verwarmingssysteem | Centrale verwarming Vloerverwarming Warmtepomp |
| Ventilatie methode | Mechanische ventilatie |
| Keukenvoorzieningen | Inbouwapparatuur |
| Badkamervoorzieningen | Douche Dubbele wastafel Ligbad Toilet Vloerverwarming |
| Heeft kabel-tv | Ja |
| Glasvezelaansluiting aanwezig | Ja |
| Tuin aanwezig | Ja |
| Beschikt over een internetverbinding | Ja |
| Heeft schuur/berging | Ja |
| Heeft zonnepanelen | Ja |
| Heeft ventilatie | Ja |
| Kadastrale aanduiding | Noordoostpolder FZ 712 |
| Perceeloppervlakte | 392 m² |
| Omvang | Geheel perceel |
| Eigendomsituatie | Eigen grond |